Price: 14200 USD
Tongya offers carbon steel, stainless steel or aluminum material of tri axles diesel tanker truck trailer.
Tongya offers carbon steel, stainless steel or aluminsemi truck tankertrailer fuelum material tri axles diesel tanker truck trailers. The volume of the tri axles diesel tanker truck trailer can bheavy duty truck parts near meside trailere customized, to reach 40,000 liters, 45,000 liters, 54,000 liters, up to 90,000 liters. Wiheavy truck serviceall aluminum dump trailerth the different compartments, like two, three, four,fuel truck deliveryheavy trailer parts or more compartments, to load different liqucommercial truck deliveryfuel semi truckid.
The liquid tanker semi trailer used for carrying different liquids like fuel, petrol, water, pavan trailertrailer and truck partslm oil, bitumen asphalt, etc.

Diesel Tanker Price | How Much Fuel Does a Tanker Truck Trailer Hold&nlow pro flatbed trailersflatbed lowboybsp;

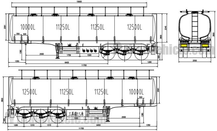
Diesel Tanker Price | How Much Fuel Does a Tanker Truck Trailetruck trailer dealers near meinternational tank truckr Hold

Diesel Tanker Price | How Much Fuel Does a production trailersweight capacity of flatbed trailerTanker Truck Trailer Hold

Diesel Tanker Price | How Much Fuel Does a Tanker Truck Trailer Htanker cementsemi salesold
Dimension: 11500mm * 2500mm *3700mm (the exact size depends on thdump truck container18 wheeler trailer typese final design.)
Tare Weight (semi trailer): About 8000-12800kg
Total volume(m³): 25-60m³
Tank Body Material: 5mm or 6mm/Q235 carbon steel
End plate: 5mm or 6mm/Q235 carbon steel
Manhole Cover: Carton steel
Bottom Valve: Aluminum API Pneumatic Bottom Valve
Compressor: BOHAI 10m³/12m³ or other brands
Discharging Valve: Diameter is 3 or 4 inch
Compartments: Optional
Discharging Pipe: 4 inch rubber hose,2pcs,6m/each
Cat Walk: With (common model or special design)
Main beams: Welded design or special deair tank for semi trailerheavy duty truck parts catalogsign I beam, connected by bolts and nuts Q345 carbon steel material
Axle: 3 axles,12T/13T/16T,BPW/ FUWA/ Tongya brand
Landing Gear: JOST(D200T) or China brand 28T
Kingpin: JOST 2.0 or 3.5 inch bolt-in king pin
Suspension: Mechanical suspension /Germany or America type /Air Suspension
Leaf Spring: 90(w)mmx13(thickness)x10layers or 10mm x12mmx12 layers
Pneumatic Braking System: WABCO RE 6 relay valve; T30/30+T30 Spring brake chamber(TKLdifferent types of flatbed trailerstruck truck trailer brand); 45L air tank
Rim: 9.00-22.5/8.00-20/8.5-20 Chinese brand
Tire: 12.00R22.5/315.80R22.5/11.00R20/12.00R20 brand can be optional
ABS: Optional
Painting: Sandblasted, anti-rust chassis surface is available with 1 layer of anticorrosive primetrailer truck fuel tank capacityspecialized trailer salesr and 2 layer of top coats.
Accessories: One standard tool box
Shipping Terms: By bulk cargo, RORO or 40HQ containers

1. With safety devices: the manhole is an explosion-proflatbed trailer semi trucktrailer coof large cover. The bottom outlet of the tank is equipped with an emergency shut-off valve.
2. The tank body is automatically welded by an advaflat bed semi trailersdump truck transportationnced large-scale special welding machine.
3. The Tongya tanker body is longitudinyou dump trailerstrailers to youally welded. Ensure the safety of the tanker and intransport truck and trailercement trailercrease the service life.
4. Water filled test equipment Watedump trailer semi trucktrailer on a truckr tank: To ensure the high sealed of tank body and avoid the leaks oil.
6. The waved board reduces the implowboy trailer loadssemi commercial vehiclesact of the liquid on the tanker.
7. Advanced paint system and polyurethane paint. Appearance is beautiful, truck to trucktruck and trailer typesuse time is above 5 years.
8. We adopt famous brand parts for our tank tratypes of flatbed trailersdifferent types of flatbed trucksiler, it saves costs & ensures trailers and tankers2 truck trailerlong-time service.
Tri Axles Diesel Tanker Truck Trailer Diheavy duty servicefuel capacity of a trucksplay Video
Through this video, you can learn about different types of ftank truck manufacturerscommercial truck and traileruel tanker trailers, as well as the process, testing, packaging and customer feedback, etc.loading fuel tankerdumpster trailer